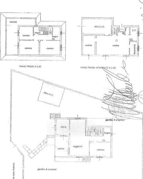
Casa indipendente in vendita Via delle Robinie 6, Assago
Salva
Casa.it
1/2
  • Street View
  • Map