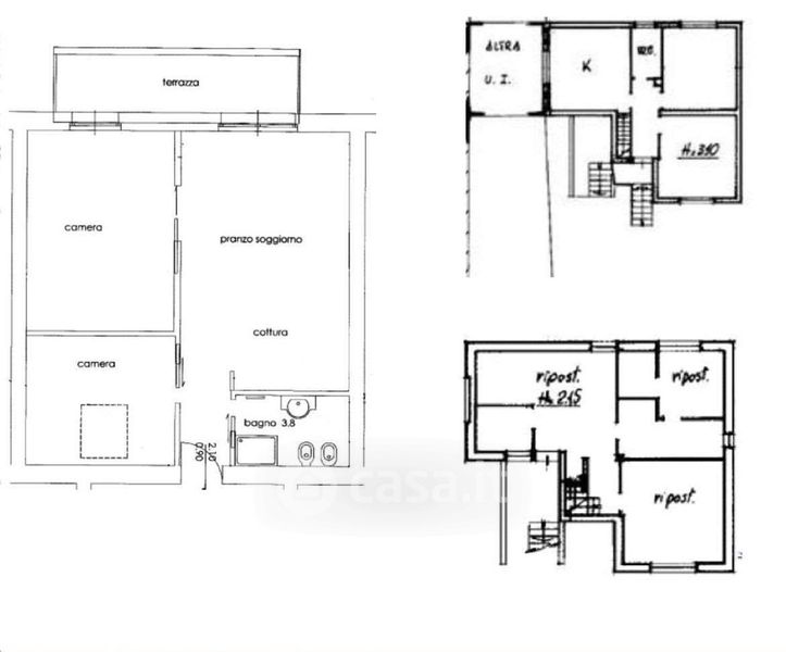
Casa indipendente in vendita Via Giuseppe Mazzini 35, Bagnolo Cremasco
Salva
Casa.it
1/17
  • Street View
  • Map