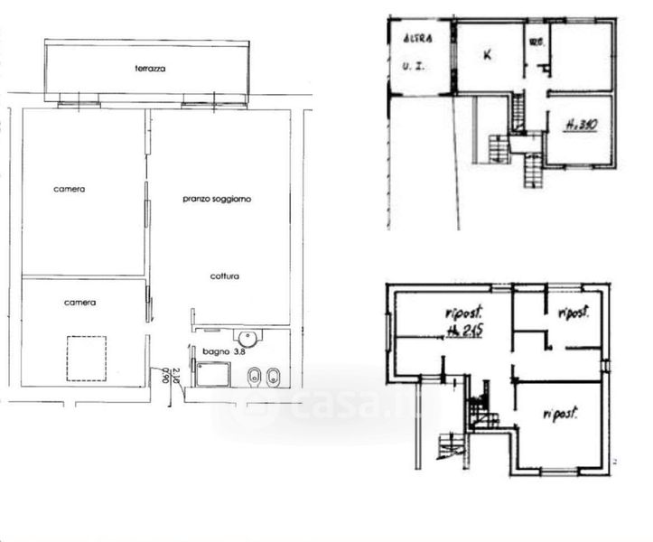
Casa indipendente in vendita Via Guerrino Cerioli 18, Cappella de' Picenardi
Salva
Casa.it
1/17
  • Street View
  • Map