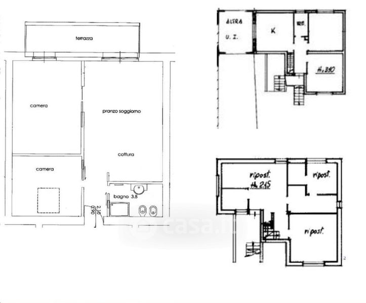
Casa indipendente in vendita Via Al Porto 12, Casaletto Ceredano
Salva
Casa.it
1/17
  • Street View
  • Map