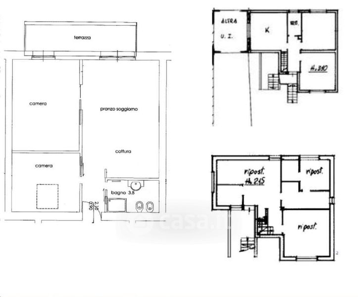
Casa indipendente in vendita Via Ghiandone 3, Castelleone
Salva
Casa.it
1/17
  • Street View
  • Map