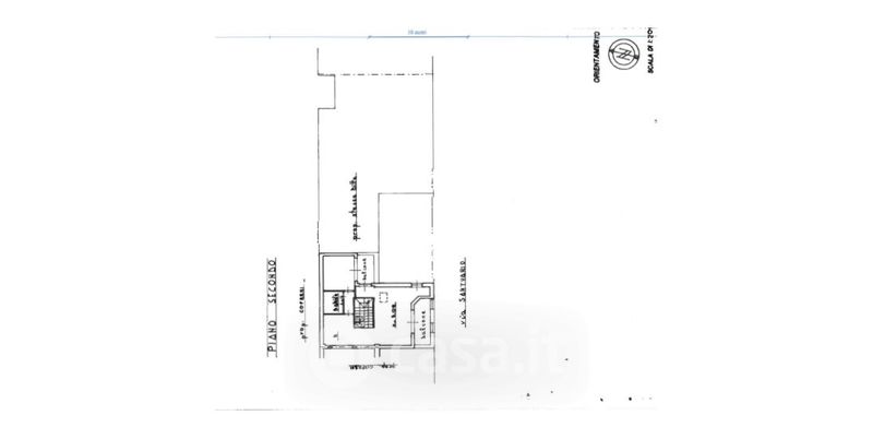
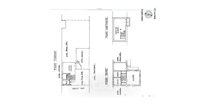
Casa indipendente in vendita Via Santuario , Cesano Maderno
Salva
Casa.it
1/63
  • Street View
  • Map