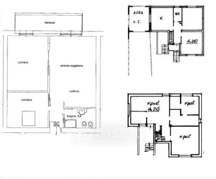
Casa indipendente in vendita Via Cucchiani 18, Chignolo Po
Salva
Casa.it
1/13
  • Street View
  • Map