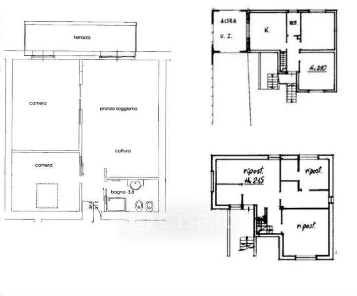
Casa indipendente in vendita Via Civerchi 51, Crema
Salva
Casa.it
1/13
  • Street View
  • Map