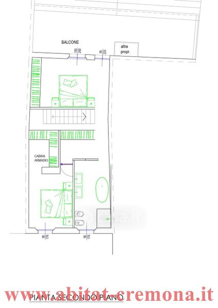
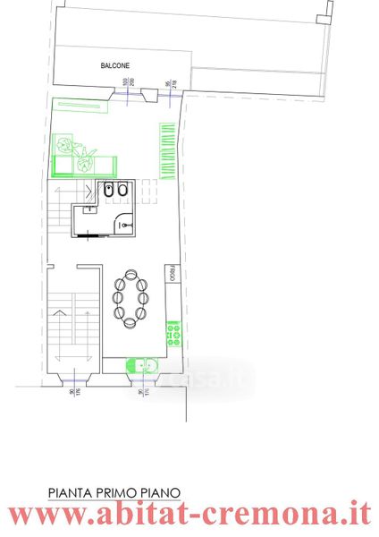
Casa indipendente in vendita Via Volturno 17, Cremona
Salva
Casa.it
1/10
  • Street View
  • Map