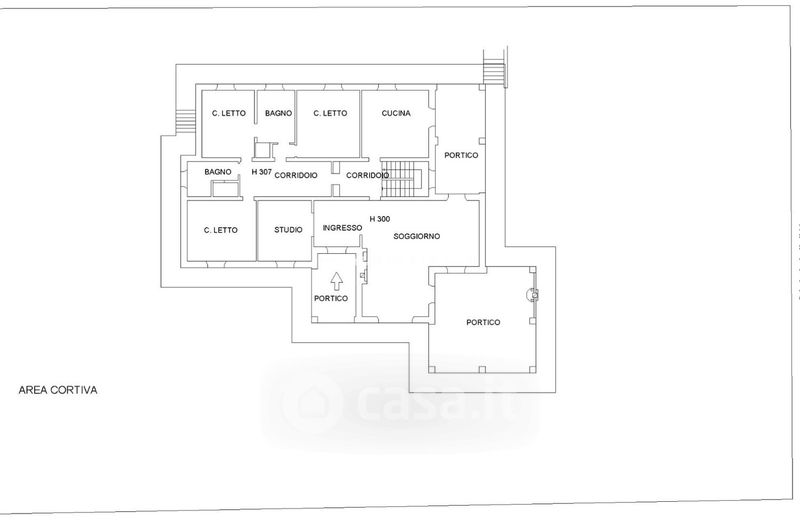
Casa indipendente in vendita Via Punte 105, Curtatone
Salva
Casa.it
1/2
  • Street View
  • Map