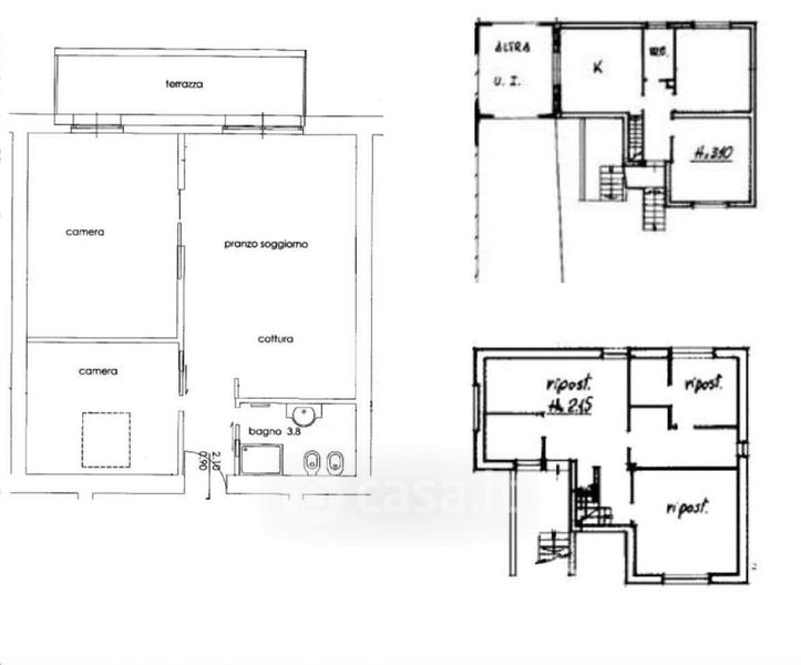
Casa indipendente in vendita Piazza Martiri della Libertà 14, Edolo
Salva
Casa.it
1/27
  • Street View
  • Map