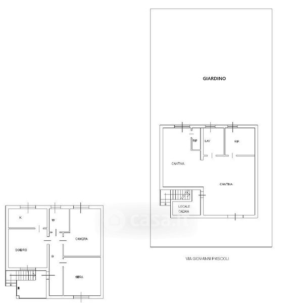
Casa indipendente in vendita Via Giovanni Pascoli 19, Gaggiano
Salva
Casa.it
1/23
  • Street View
  • Map