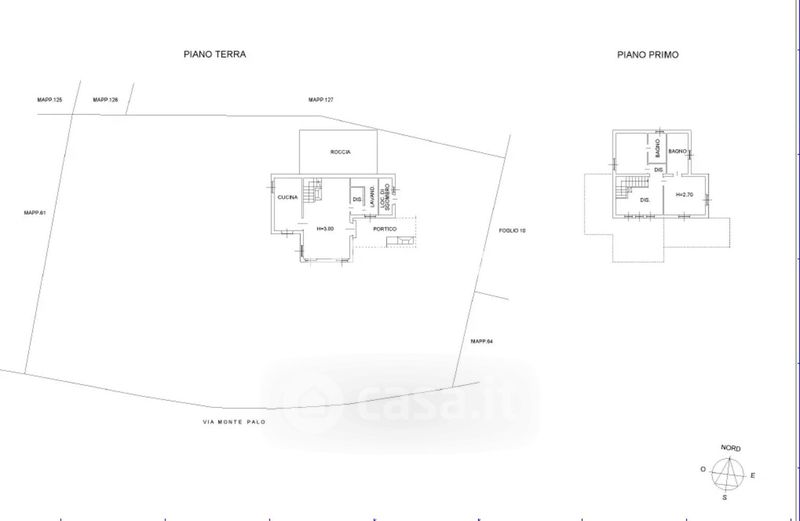
Casa indipendente in vendita Via Monte Palo , Lodrino
Salva
Casa.it
1/14
  • Street View
  • Map