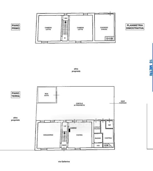
Casa indipendente in vendita Via Gallerina 18, Lomello
Salva
Casa.it
1/30
  • Street View
  • Map