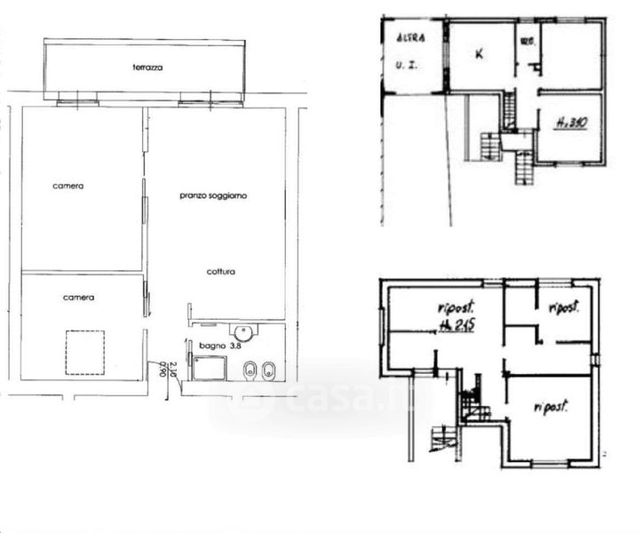
Casa indipendente in vendita Vicolo Ritorto 9 A, Manerbio
Salva
Casa.it
1/29
  • Street View
  • Map