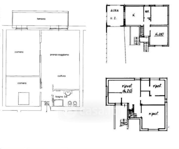
Casa indipendente in vendita Via Cucchi Marcantonio 17, Martinengo
Salva
Casa.it
1/31
  • Street View
  • Map