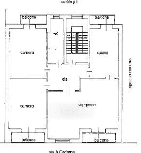
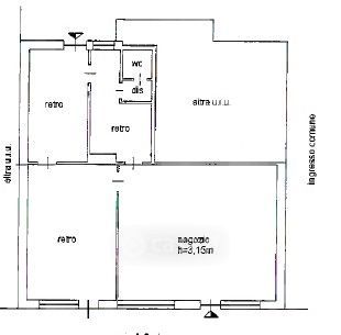
Casa indipendente in vendita Via A. Cederna 47, Monza
Salva
Casa.it
1/51
  • Street View
  • Map