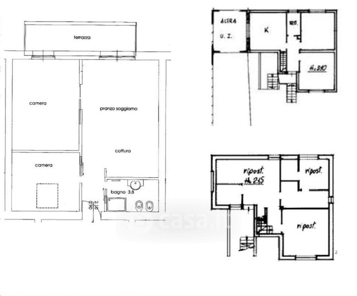
Casa indipendente in vendita Via Sorzana 2, Nuvolera
Salva
Casa.it
1/17
  • Street View
  • Map