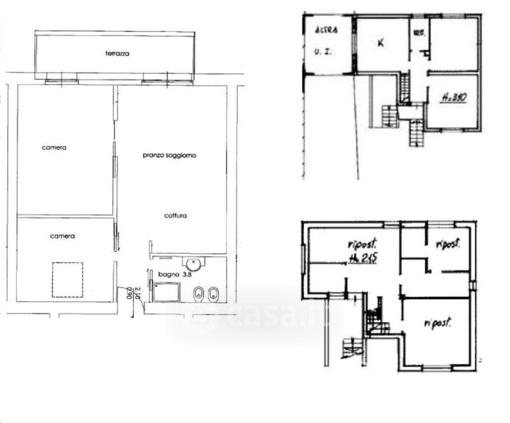
Casa indipendente in vendita Vicolo Castello 32, Paullo
Salva
Casa.it
1/17
  • Street View
  • Map