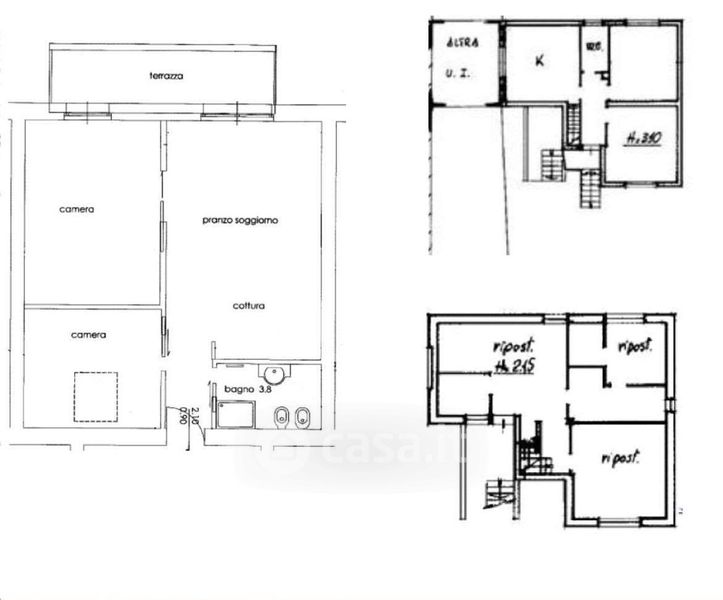
Casa indipendente in vendita Via Roma 76, Pertica Bassa
Salva
Casa.it
1/18
  • Street View
  • Map