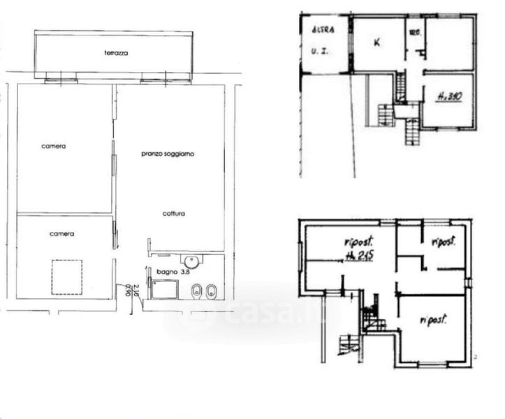
Casa indipendente in vendita Via Monsignore Padovani 49, Pessina Cremonese
Salva
Casa.it
1/13
  • Street View
  • Map