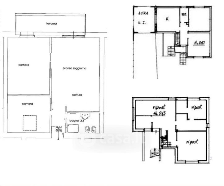
Casa indipendente in vendita Via D. Plona 27, Polaveno
Salva
Casa.it
1/33
  • Street View
  • Map