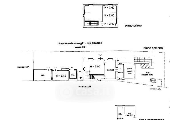
Casa indipendente in vendita Via G. Marconi 2, Porto Valtravaglia
Salva
Casa.it
1/16
  • Street View
  • Map