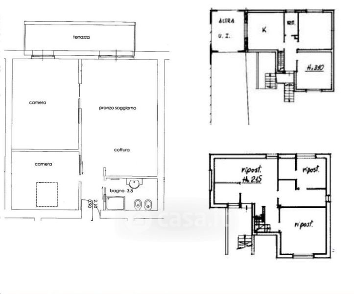
Casa indipendente in vendita Via Antonio Gramsci 13, Quinzano d'Oglio
Salva
Casa.it
1/31
  • Street View
  • Map