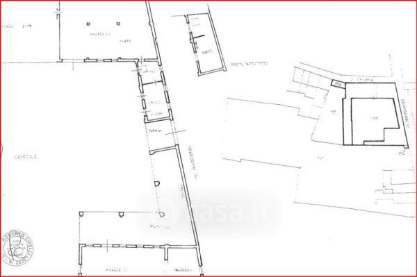
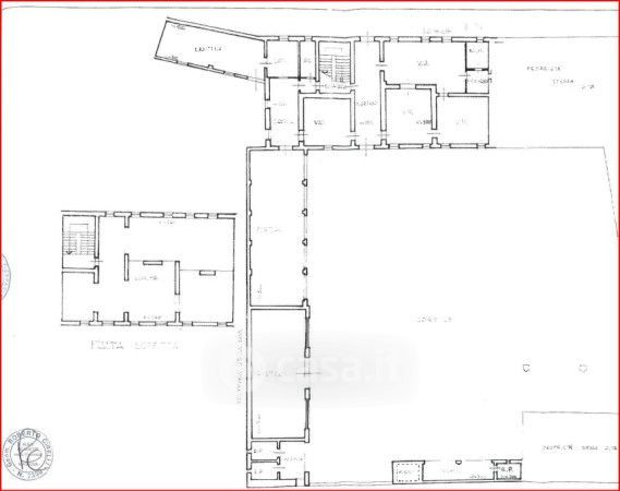
Casa indipendente in vendita Via Dovara 3, Sabbioneta
Salva
Casa.it
1/34
  • Street View
  • Map