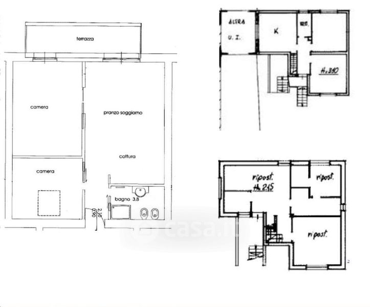
Casa indipendente in vendita Via Giuseppina 70, San Giovanni in Croce
Salva
Casa.it
1/13
  • Street View
  • Map