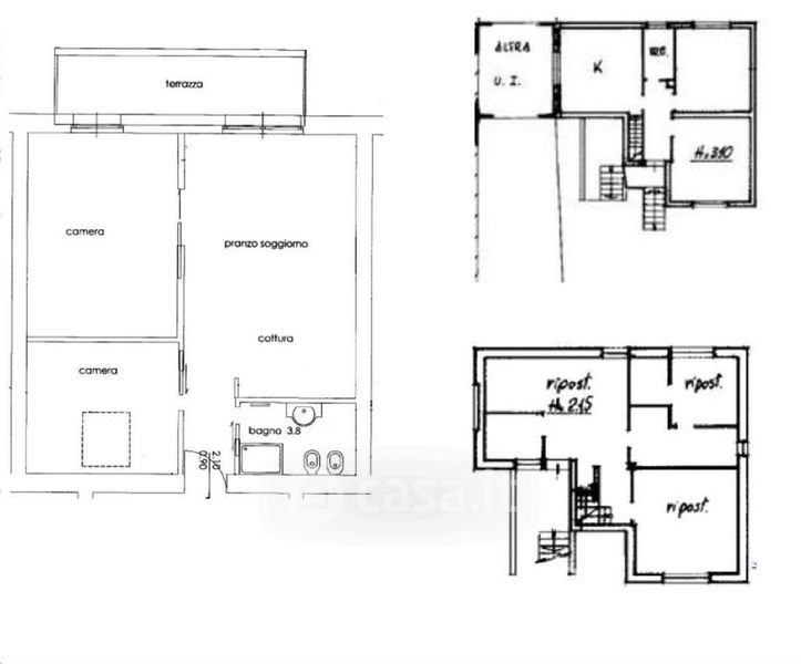
Casa indipendente in vendita Via Grande Italia 103, San Rocco al Porto
Salva
Casa.it
1/11
  • Street View
  • Map