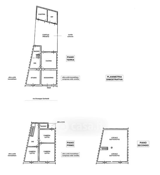
Casa indipendente in vendita Via Giuseppe Garibaldi 19, Sannazzaro de' Burgondi
Salva
Casa.it
1/35
  • Street View
  • Map