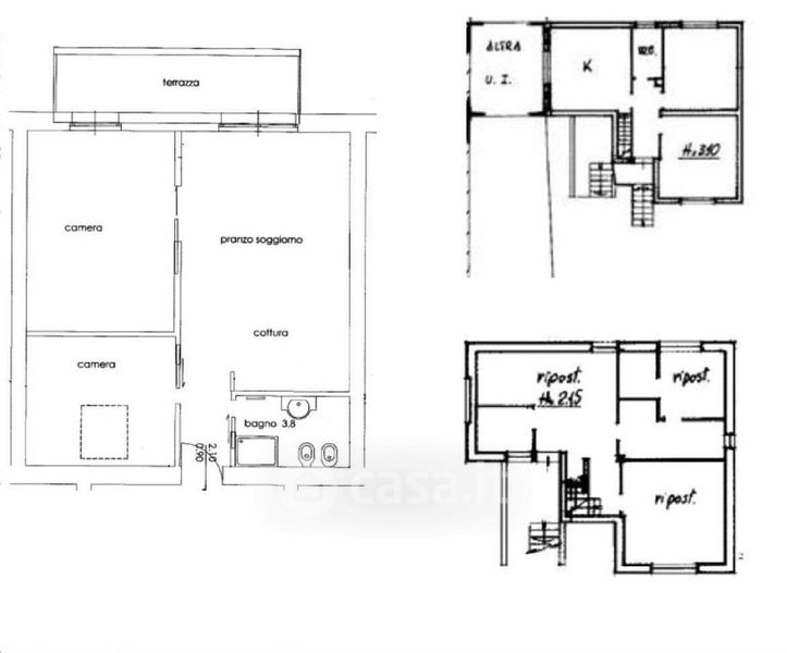
Casa indipendente in vendita Via Storta 3, Scandolara Ravara
Salva
Casa.it
1/17
  • Street View
  • Map