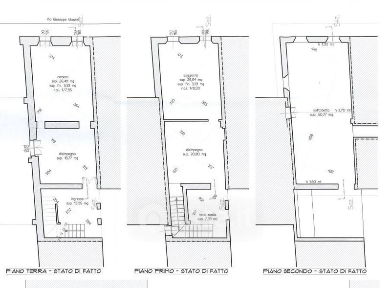
Casa indipendente in vendita Via G. Mazzini 33, Solaro
Salva
Casa.it
1/25
  • Street View
  • Map