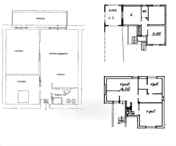
Casa indipendente in vendita Via Voiandes 2, Tremosine sul Garda
Salva
Casa.it
1/31
  • Street View
  • Map