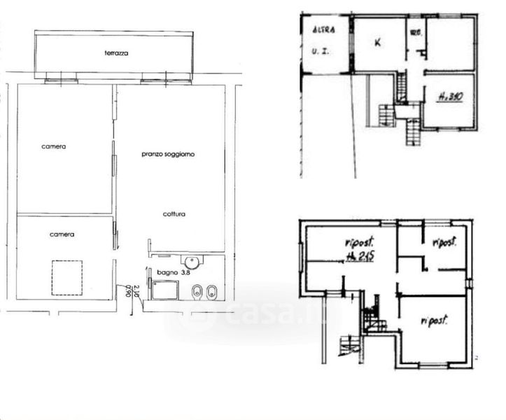
Casa indipendente in vendita Via Lodigiani Lelia 31, Vaiano Cremasco
Salva
Casa.it
1/9
  • Street View
  • Map