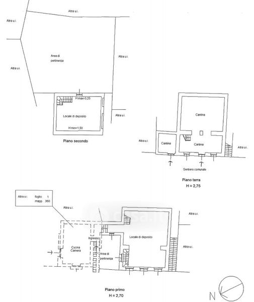
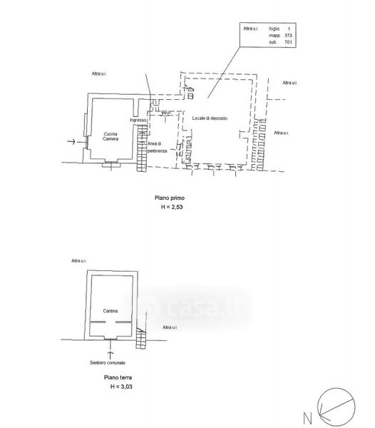
Casa indipendente in vendita Via Statale , Valsolda
Salva
Casa.it
1/35
  • Street View
  • Map