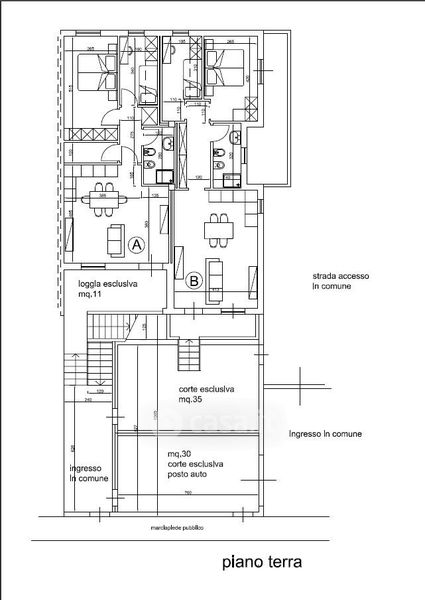
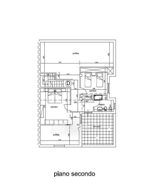
Casa indipendente in vendita Strada del Pincio , Civitanova Marche
Salva
Casa.it
1/23
  • Street View
  • Map