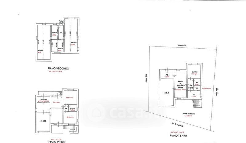
Casa indipendente in vendita Via Giacomo Matteotti 174, Cupramontana
Salva
Casa.it
1/29
  • Street View
  • Map