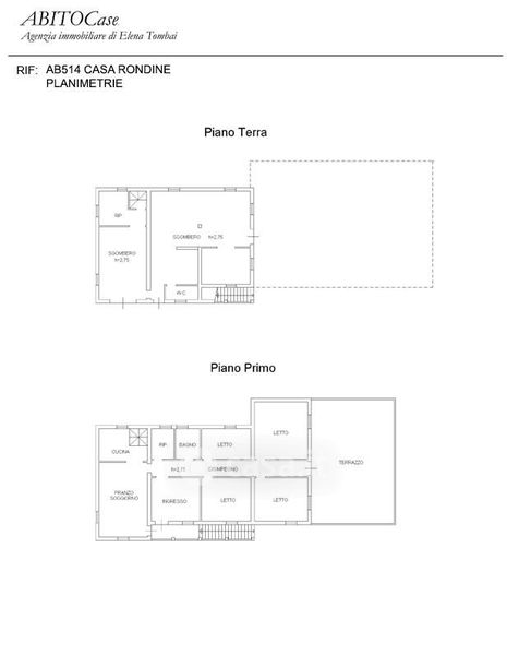
Casa indipendente in vendita Via Montepietro 4, Terre Roveresche
Salva
Casa.it
1/62
  • Street View
  • Map