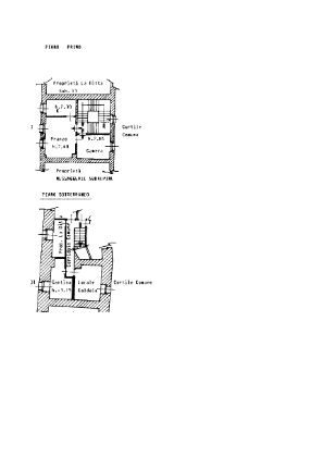
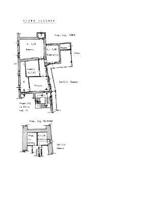
Casa indipendente in vendita Via G. Giolitti , Dronero
Salva
Casa.it
1/24
  • Street View
  • Map