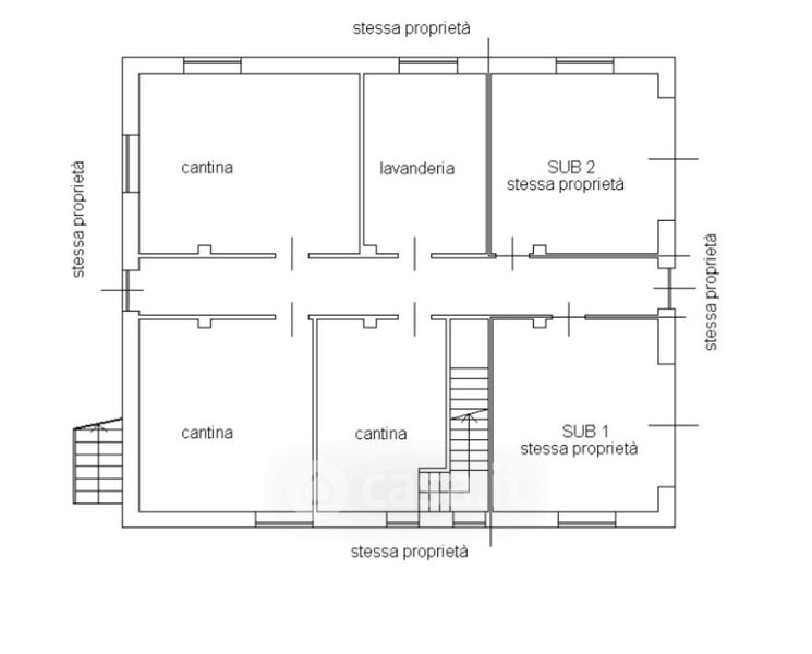
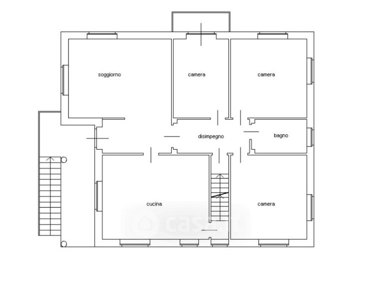
Casa indipendente in vendita Corso Industria 6, Monteu da Po
Salva
Casa.it
1/53
  • Street View
  • Map