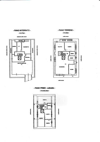
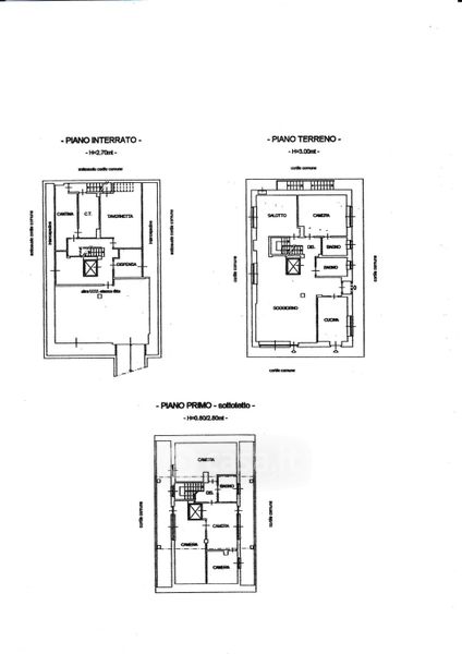
Casa indipendente in vendita Via Solairano 5 A, Pino Torinese
Salva
Casa.it
1/41
  • Street View
  • Map