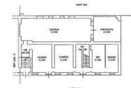
Casa indipendente in vendita Via Cisterna , San Damiano d'Asti
Salva
Casa.it
1/9
  • Street View
  • Map