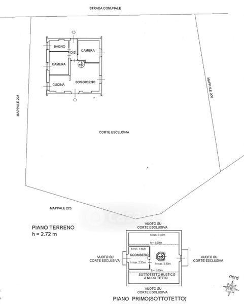
Casa indipendente in vendita Borgata Vignassa 57, Sant'Antonino di Susa
Salva
Casa.it
1/25
  • Street View
  • Map