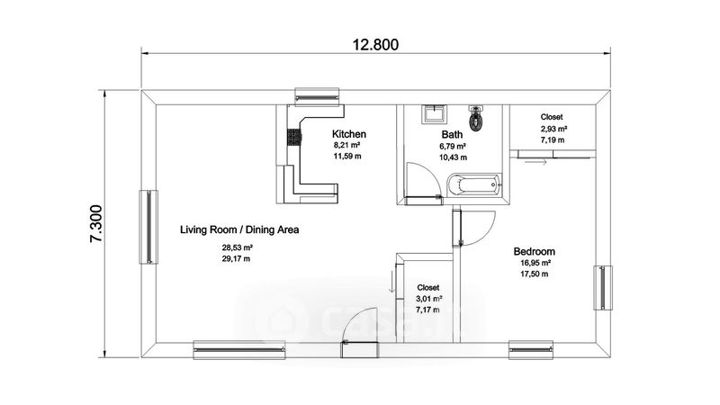
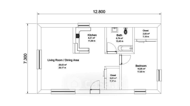
Casa indipendente in vendita Via Vitangelo Luciani , Acquaviva delle Fonti
Salva
Casa.it
1/40
  • Street View
  • Map