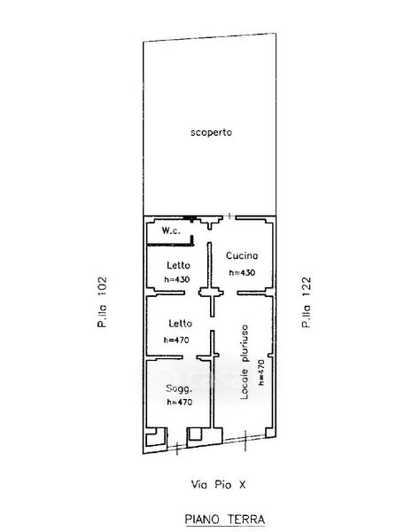
Casa indipendente in vendita Via San Pio X , Collepasso
Salva
Casa.it
1/30
  • Street View
  • Map