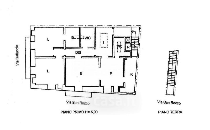
Casa indipendente in vendita Via San Rocco 9, Galatina
Salva
Casa.it
1/25
  • Street View
  • Map