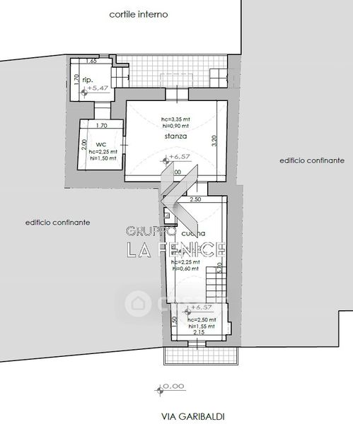
Casa indipendente in vendita Via Giuseppe Garibaldi , Locorotondo
Salva
Casa.it
1/64
  • Street View
  • Map