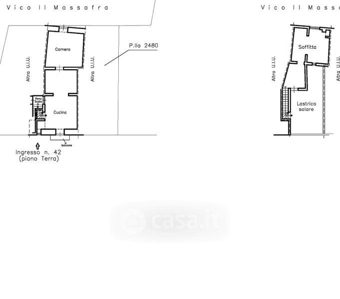
Casa indipendente in vendita Corso dei Mille 42, Martina Franca
Salva
Casa.it
1/49
  • Street View
  • Map