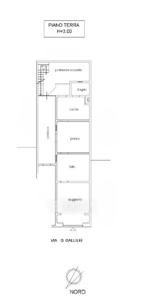
Casa indipendente in vendita Via Galilei , Matino
Salva
Casa.it
1/48
  • Street View
  • Map