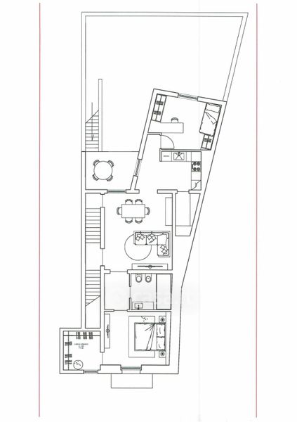
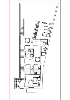
Casa indipendente in vendita Viale Giacomo Matteotti 126, Mola di Bari
Salva
Casa.it
1/36
  • Street View
  • Map