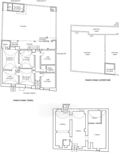
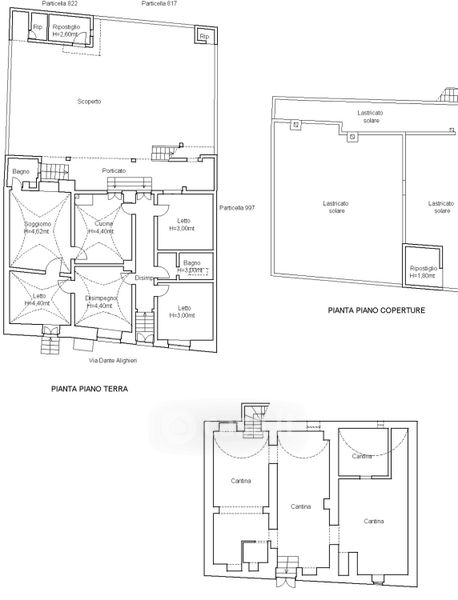
Casa indipendente in vendita Via dante alighieri 21, Montesano Salentino
Salva
Casa.it
1/42
  • Street View
  • Map