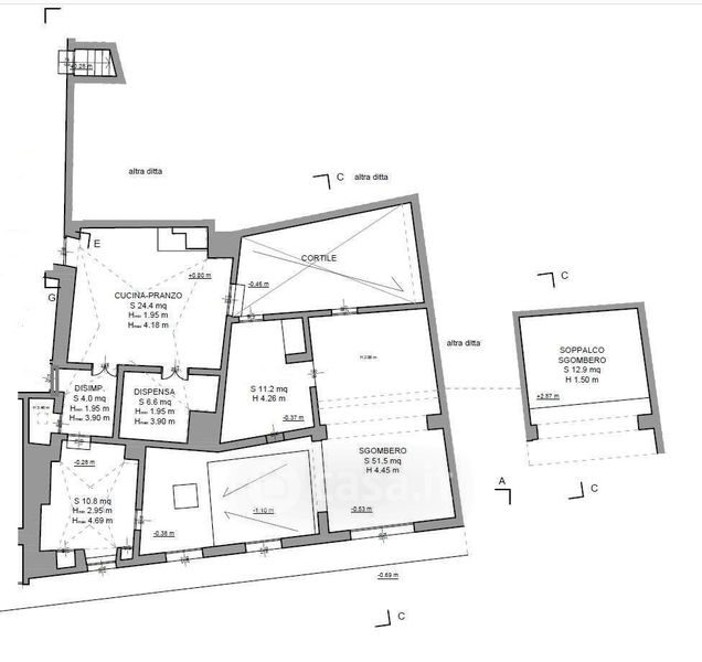
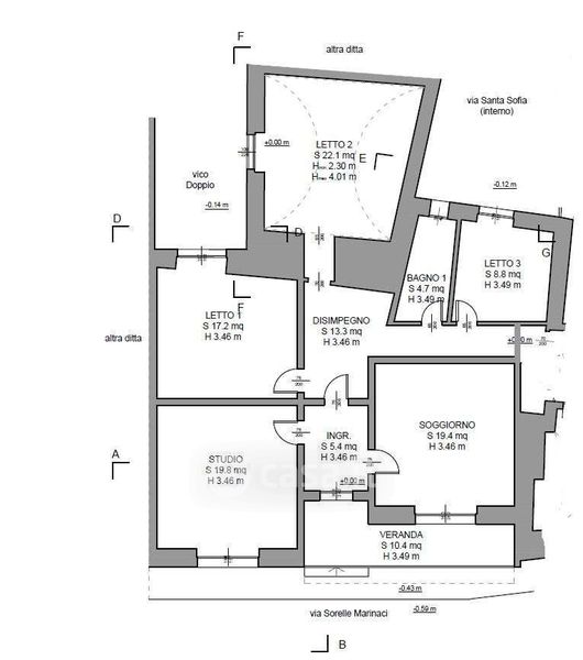
Casa indipendente in vendita Via Sorelle Marinaci , Nardò
Salva
Casa.it
1/38
  • Street View
  • Map